Wohnhaus E in München

Wohnhaus in München
Neubau eines 3-Familien-Wohnhauses

BauherrPrivat
StandortMünchen Trudering
Schnittzeichnung eines Hauses mit drei Balkonen, zwei Personen und einem Kind in orangefarbener Silhouette, Baum im Hintergrund.
Seitenansicht eines zweistöckigen Hauses mit Satteldach, zwei Fenstern im Obergeschoss, einem Fenster im Erdgeschoss, zwei orangefarbenen Figuren, eine auf einem Fahrrad, die andere mit einem Kind.
Modernes dreistöckiges Wohnhaus mit großen Fenstern, zwei Balkonen, einer Person auf dem Balkon und zwei Personen im Gartenbereich.
Modernes dreistöckiges Wohnhaus mit schrägem Dach, großen Fenstern und Holzverkleidung, umgeben von Bäumen und Hecken.
Fassade eines dreistöckigen Gebäudes mit Balkonen und zwei orangenen Figuren, eine steht links, die andere sitzt rechts.
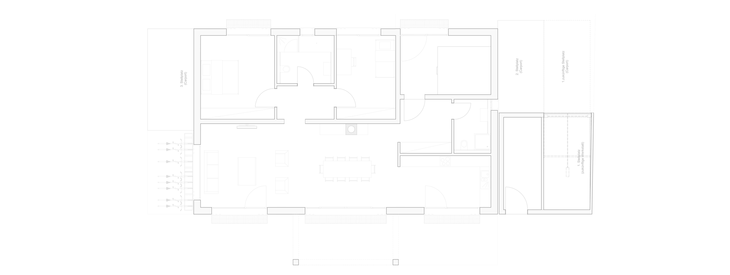
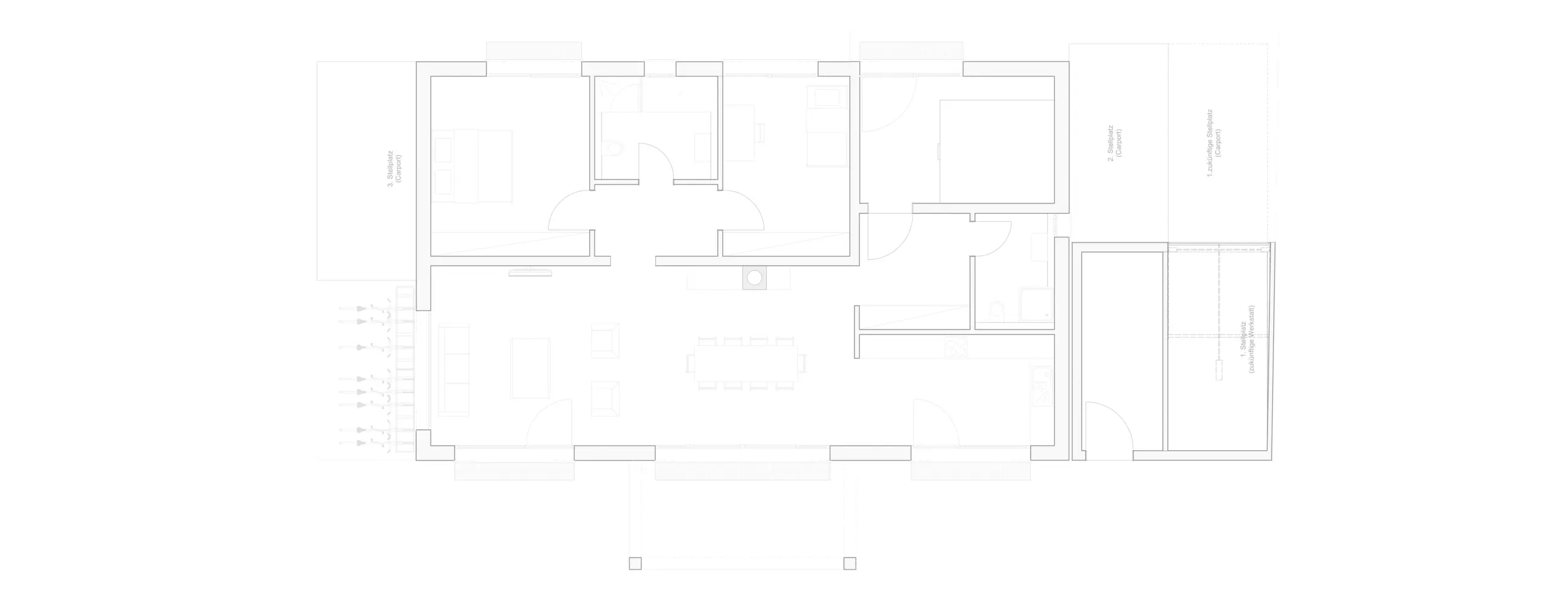
Grundriss eines Hauses mit mehreren Räumen, darunter Wohnzimmer, Schlafzimmer, Küche und Badezimmer, mit Türen und Fenstern eingezeichnet.