Gnadenhof / Tierschutzverein in Kirchasch

Gnadenhof im Münchner Osten
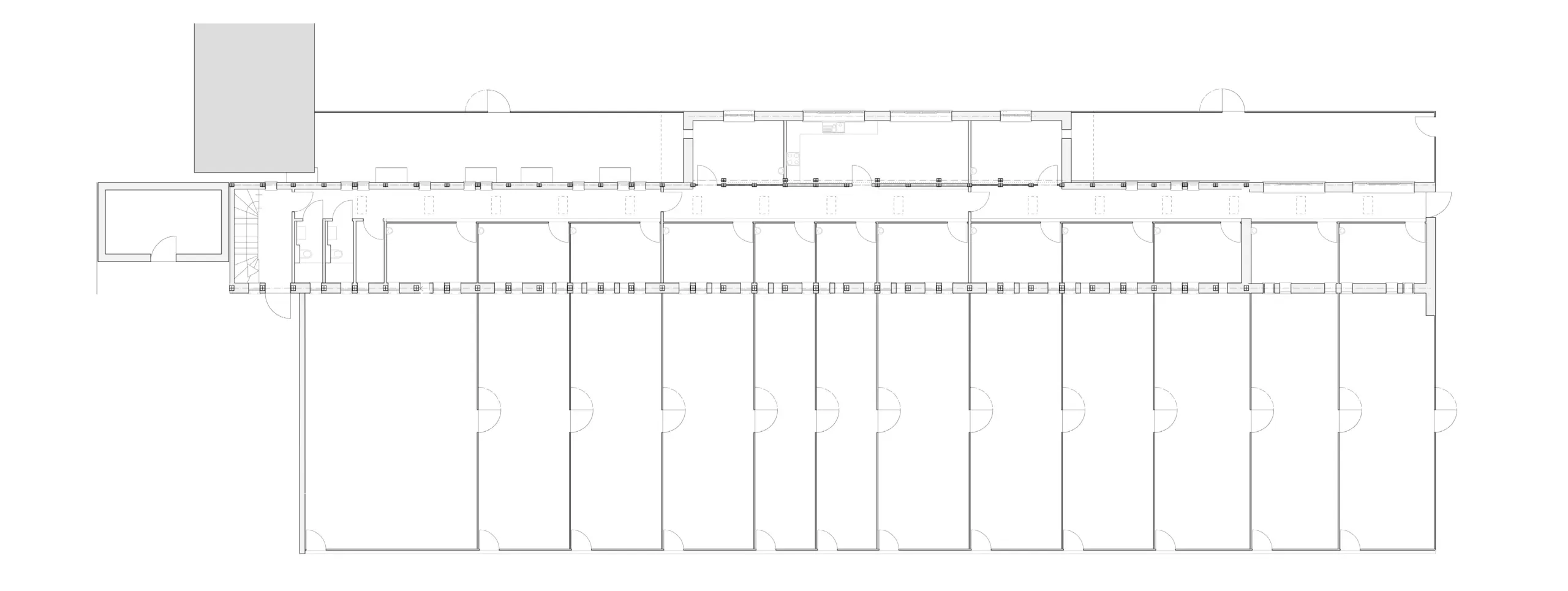
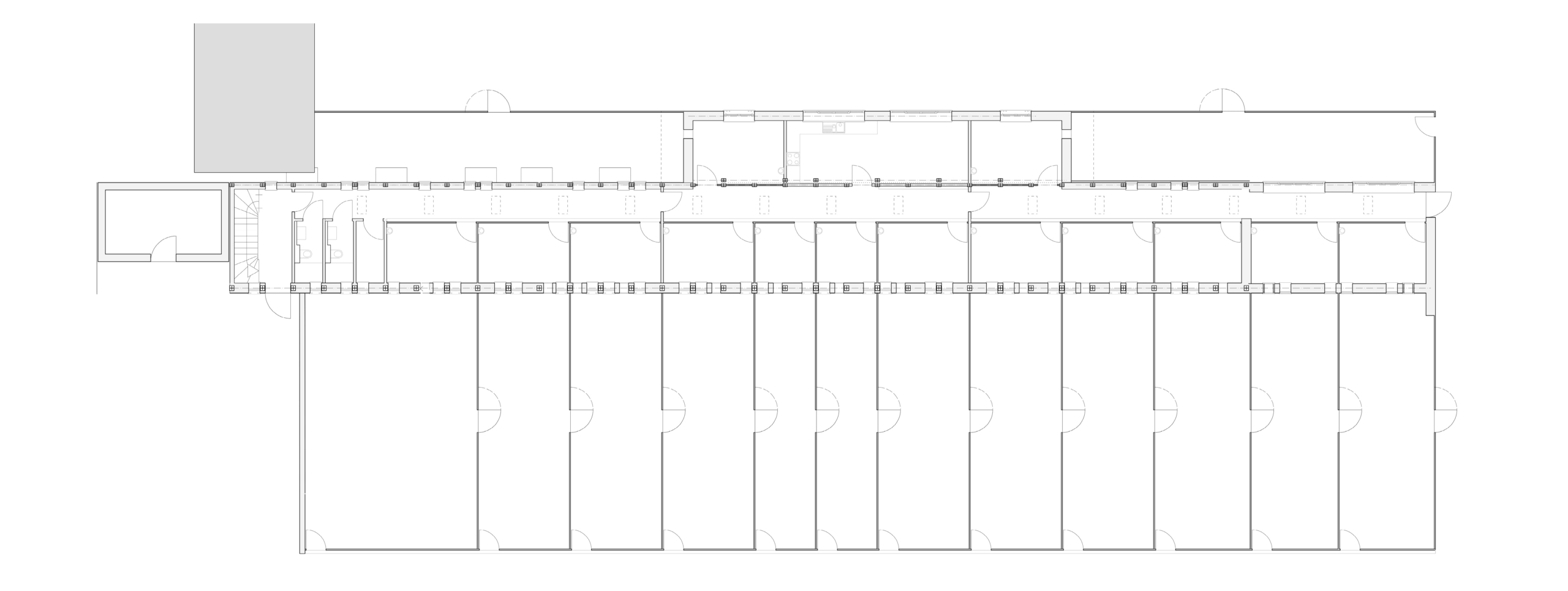
Sanierung und Erweiterung des Hundehauses

BauherrTierschutzverein München e.V.
StandortMünchen Kirchasch
Seitenansicht eines langen, flachen Gebäudes mit mehreren Fenstern, zwei Bäumen links und rechts sowie zwei orangefarbenen Tieren davor.
Grundriss Skizze mit zwei Siloutten eines Menschen und eines Hundes in orangener Farbe
Grundriss eines länglichen Gebäudes mit mehreren nebeneinanderliegenden Räumen, Türen und Fluren, ohne Beschriftungen.